

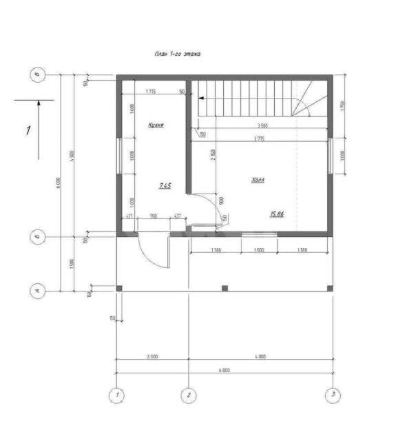
Планировки

Дачный дом пятой комплектации
3 комнаты
36 м2
2 этажа
Каркасные
от 2 984 000 ₽
Характеристики
О доме
Площадь дома
36 м2
Количество комнат
3
Количество санузлов
1
Площадь кухни-гостиной
15 м2
Количество этажей
2
Комплектации
Только «Чистовая»
- Ценаот 2 984 000 руб.
- Потолочное перекрытиеЕсть
- ПотолкиЕсть
- Облицовка внешних стенЕсть
- ДвериЕсть
Строительная компания
Каркас ДВ
Год основания
2013
Построено домов
-
Период строительства
Круглый год
Консультант по строительству домов
Заказать в Хабаровске строительство дома под ключ по проекту Дачный дом пятой комплектации, ID 4260
- Главная
- Строительство домов
- Код объекта 4260
